House
HOUSE WITH TWO APARTMENT UNITS AND POOL
House
243 m2
Šišan, Ližnjan
Bedrooms 4
Pool
Parking 4
Features
Description
Liznjan is a village in the extreme southeast of Istria. It is located on a slope that descends towards the sea.The geographical position of Ližnjan offers a view of the Kvarner Bay, which reaches all the way to the islands of Cres and Lošinj. The Municipality of Ližnjan itself includes the nearby settlements of Valturu, Muntić, Jadreške and Šišan.
A house under construction with a total living area of 243 m2 is for sale in Šišan. It is located on a plot of land of 506 m2 as a detached building consisting of the ground floor and the first floor. It is of modern construction, top quality materials and PVC windows were used in the construction. The ground floor is open, where there is a kitchen with a dining room and a living room with access to the terrace and pool, two bedrooms and a bathroom.
On the first floor there is a kitchen with a living room, two bedrooms, a bathroom and a terrace with a view of the sea.
The house is currently in the roh-bau phase of construction and is being sold as such. An agreement on the continuation of the construction of the house is possible with the investor.
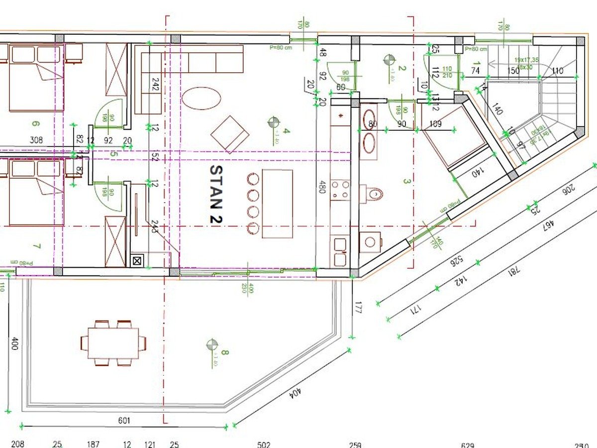
Apartment 1 on the ground floor - 125.39 m2, has the following composition: Entrance hall 7.20 m2, living room with kitchen and dining room 40.20 m2, Room 1: 13.35 m2, Room: 13.60 m2, Bathroom 9.35 m2, Storage room 3.09 m2 and Covered terrace 20 m2
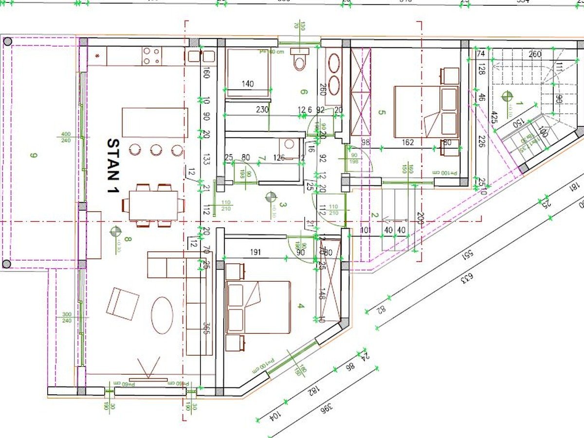
Apartment 2 on the first floor - 118.33 m2, has the following composition: Entrance hall 1.72 m2, living room with kitchen and dining room 42.72 m2, Room 1: 12.65 m2, Room 2: 12.65 m2, Bathroom 13.75 m2, open terrace 29 m2. The entrance area is 7.15 m2, while the area of the staircase is 11.45 m2.
The property is located within walking distance of the center, surrounded by a holiday home, so it is an attractive position both for living and as an investment for tourism.
FOR ALL OTHER INFORMATION, CALL THE NUMBER:
+385 98 174 8680
dean.zunic@family-nekretnine.hr
DEAN ŽUNIĆ
Licensed agent
+385 91 539 6446
edita.premate@family-nekretnine.hr
Edita Premate Panić
Mediation Assistant
Additional information
- Heating: Air conditioning, Floor heating
- Joinery: Excellent, PVC
- Wall material: Brick
- Roof: Flat roof
- Ownership: Orderly
- Certificate of ownership: Yes
- Building permit: Yes
Location

