Search properties
Min
Max
Min
Max

House

SPACIOUS HOUSE WITH THREE RESIDENTIAL UNITS IN LIŽNJAN

House

350 m2

Ližnjan

Bedrooms 6

Bathrooms 3

Parking

Features

Type: Self-standing
Garden area: 563 m²
Number of floors: 2
Number of flats: 3
Electricity
Water
Sewerage
Phone line connection
Distance to sea: 2,000 m
Distance to center: 600 m

Description

Spacious house with three residential units in Ližnjan – 350 m²

A detached house of approximately 350 m² is for sale in a quiet part of Ližnjan, situated on a plot of 779 m². The property is ideal for a family, a tourist rental or a combination of both, thanks to its smart layout and separate units.

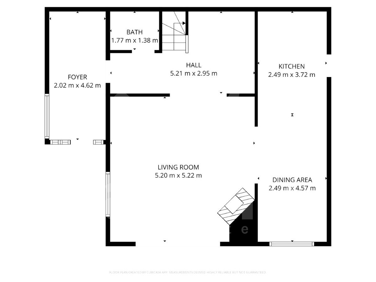
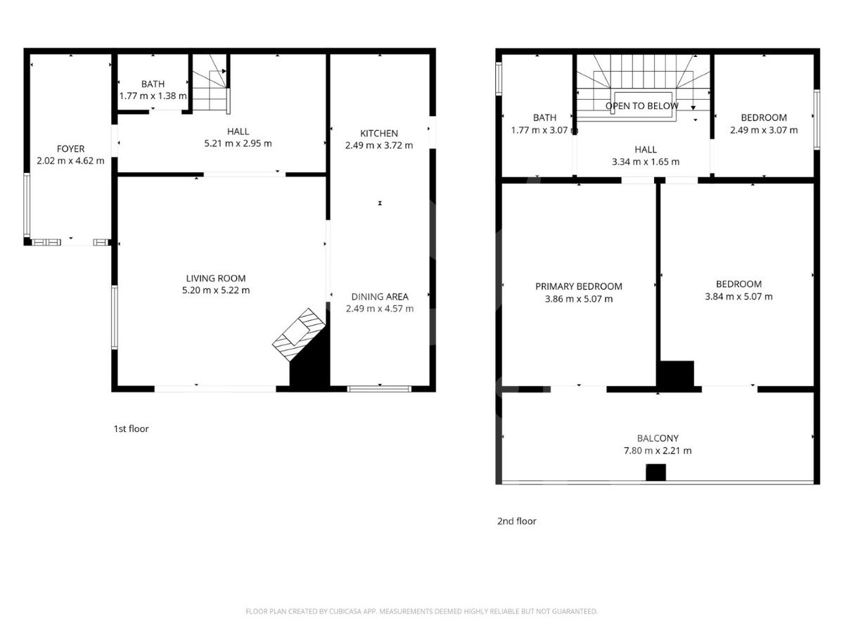
House layout:

  • Main living unit (156 m²) – a two-storey apartment with a living room, kitchen and dining room, an additional toilet and a fireplace for a cozy atmosphere. Upstairs there are three bedrooms, a bathroom and a terrace overlooking the courtyard. Central heating is installed, but currently inactive.
  • Duplex apartment (86 m²) – lower floor with a living room, kitchen and bathroom; upper floor with two bedrooms and a terrace. The roof terrace offers a beautiful view of the sea and the surroundings.
  • Ground floor unit (70 m²) – includes a bedroom, living room with kitchen, bathroom and access to a paved terrace with a summer kitchen, ideal for guests or long-term rental.

Additional features:

  • Maintained and fenced yard with enough space for parking several vehicles
  • All units equipped with air conditioning
  • Possibility of additional landscaping of the yard, including a swimming pool or relaxation area
  • The property is already in the function of a tourist rental, which is an advantage for investors
  • Floors covered with quality parquet and ceramics
  • Living openings equipped with PVC and wooden joinery
  • Heating regulated by a wood stove

Location:

  • Only 750 m to the center of Ližnjan.
  • The sea and beaches are about 2 km away.
  • Quick connection to Pula and Medulin.

This property combines spaciousness, separate living units, attractive location and sea view, making it an ideal opportunity for both private use and tourist rental.

FOR ALL OTHER INFORMATION, CALL:

+385 97 7744 467
danijela.milotic@family-nekretnine.hr
Danijela Milotić
Mediation assistant


Additional information

  • Heating: Central, Wood stove
  • Joinery: Wooden, Excellent, PVC
  • Parquet: Good
  • Facade: Thermal insulation
  • Ownership: Orderly
  • Certificate of ownership: Yes

Location

Mediation Assistant

Mediation Assistant

Danijela Milotić

danijela.milotic@family-nekretnine.hr

+385977744467

Languages: Hrvatski

Send message to: