Apartma
ZASEBNOST, VIŠINA IN STIL - TRISOBNO MEŠANO STANOVANJE BREZ KOMPROMISA
Apartma
120 m2
Valdebek, Pula
Nadzor 2
Spalnice 3
Kopalnice 2
Parkiranje 2
Značilnosti
Opis
Na samem jugu Istre se nahaja Pula, mesto, ki odlično združuje mediteranski življenjski slog, bogato zgodovino in vse ugodnosti sodobnega urbanega okolja. Morje, plaža, sprehajališča, kulturni objekti in razvita infrastruktura uvrščajo Pulj med najbolj zaželena mesta za življenje, hkrati pa predstavljajo varno naložbo za dolgoročni ali turistični najem. V takšnem okolju se ponuja to funkcionalno in udobno stanovanje, idealno za družinsko življenje, pare ali kot naložba brez dodatnih naložb.
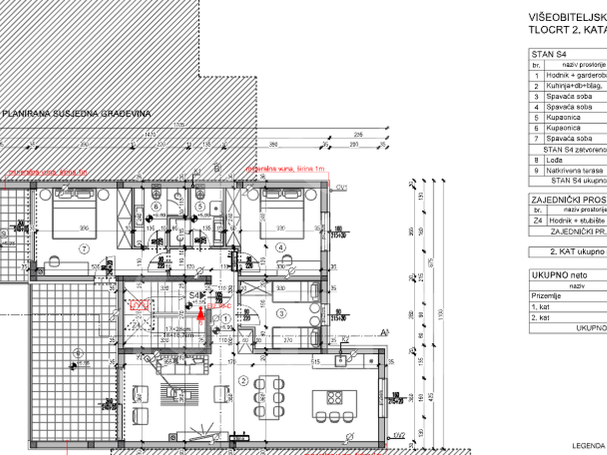
Stanovanje S4 Z2 s skupno površino 120,79 m2 se nahaja v drugem nadstropju stanovanjske stavbe in izstopa z odlično razporeditvijo prostorov. Sestavljeno je iz prostorne dnevne sobe, povezane z jedilnico, kuhinje, funkcionalno integrirane v dnevni prostor, 3 spalnic, 2 modernih kopalnic in hodnika z dovolj prostora za shranjevanje. Posebna prednost te nepremičnine je pokrita terasa velikosti 8,25 m2 in velika loža velikosti 22,07 m2, ki zagotavlja dodaten zunanji prostor, primeren za vsakodnevno uporabo in preživljanje časa na prostem z družino in prijatelji – redkost, ki znatno poveča kakovost bivanja.
Stanovanju pripada shramba, garaža in dodatno parkirno mesto.
Stanovanje je bilo zgrajeno s poudarkom na kakovosti in energetski učinkovitosti. Stavba bo imela 10 cm debelo termo fasado, talne obloge pa bodo iz svetle keramike. Vgrajena bodo antracitna PVC stavbna pohištva s troslojnim steklom in komarniki, dnevna soba pa bo opremljena z velikimi dvižno-drsnimi steklenimi stenami, ki bodo zagotavljale veliko naravne svetlobe in dobro povezavo med notranjim in zunanjim prostorom.
Ogrevanje bo v dnevni sobi in kopalnicah regulirano s talnim ogrevanjem, hlajenje pa bodo zagotavljale inverterske klimatske naprave znamk DAIKIN ali Mitsubishi. Predviden je tudi kamin z dimnikom, kot dodatna možnost ogrevanja in ustvarjanja prijetnega vzdušja v prostoru. Projekt je v napredni fazi gradnje, dokončanje in vselitev pa sta predvidena do konca leta 2026.
Stanovanje se nahaja na lokaciji, ki omogoča hiter in enostaven dostop do vseh pomembnih storitev: trgovin, šol, vrtcev, javnega prevoza, pa tudi mestnih cest. Plaže, mestno središče in sprehajališča so oddaljeni le nekaj minut vožnje.
Če iščete stanovanje, ki ponuja več kot le klasično bivanje v stavbi – lasten zunanji prostor, varno parkirišče in mirno okolje v enem najbolj privlačnih istrskih mest – ta nepremičnina predstavlja izjemno priložnost.
Za vse dodatne informacije pokličite:
+385 98 139 7496
marin.cude@family-nekretnine.hr
Marin Čude
Pomočnik pri mediaciji
Dodatne informacije
- Ogrevanje: Klima, Podno grijanje
- Mizarstvo: Odlično, PVC
- Material sten: Cigla
- Fasada: Odlično, Termo izolacija
- Površina pod streho: Odlično
- Stopnice: Odlično
- Stanje stavbe: Odlično
- Zunanje stopnice: Odlično
- Notranje stopnišče: Odlično
- Lastništvo: Urejen
- Lastniško dovoljenje: Da
- Lokacija z dovoljenjem za lokacijo: Da
- Uporabno dovoljenje: Da
Lokacija
