Hotel
EXKLUSIVE RUSTIKALES ANWESEN MIT POTENZIAL FÜR DEN BAU EINES HOTELS
Hotel
600 m2
Beram, Pazin
Schlafzimmer 20
Badezimmer 20
Parken
Merkmale
Beschreibung
Die Stadt Pazin liegt im Herzen der istrischen Halbinsel und ist reich an natürlichen Ressourcen. Sie bietet jedes Jahr eine wachsende Zahl von Veranstaltungen und ist mit immer mehr Veranstaltungen das Zentrum des Kultur-, Sport-, Bildungs-, Wirtschafts- und Unterhaltungslebens Touristen.
Direkt in einer kleinen Siedlung, nur 5 km von Pazin entfernt, befindet sich dieses wunderschöne Anwesen mit Antiquitäten von beneidenswerter Fläche, daneben befindet sich ein Baugrundstück von ca. 4.000 m2 und ein äußerst weitläufiges landwirtschaftliches Grundstück von 15.400 m2, das zusammen eine Fläche von ca ein außergewöhnlicher Komplex von Anwesen mit hohem Potenzial. Der Vorschlag umfasst ein Projekt zur Adaptierung von Antiquitäten sowie eine Baugenehmigung und bezahlte Nebenkosten. Die Grundstücke verfügen über Strom- und Wasserzähler.
Durch eine Änderung des Projekts kann ein Hotel gebaut werden, das mit einem großzügigen Grundstück je nach Kundenwunsch unterschiedliche Kriterien hinsichtlich des Platzangebots für begleitende Hotelinhalte, seien es Schwimmbäder, Spielplätze, Sportplätze oder Ähnliches, erfüllen könnte.
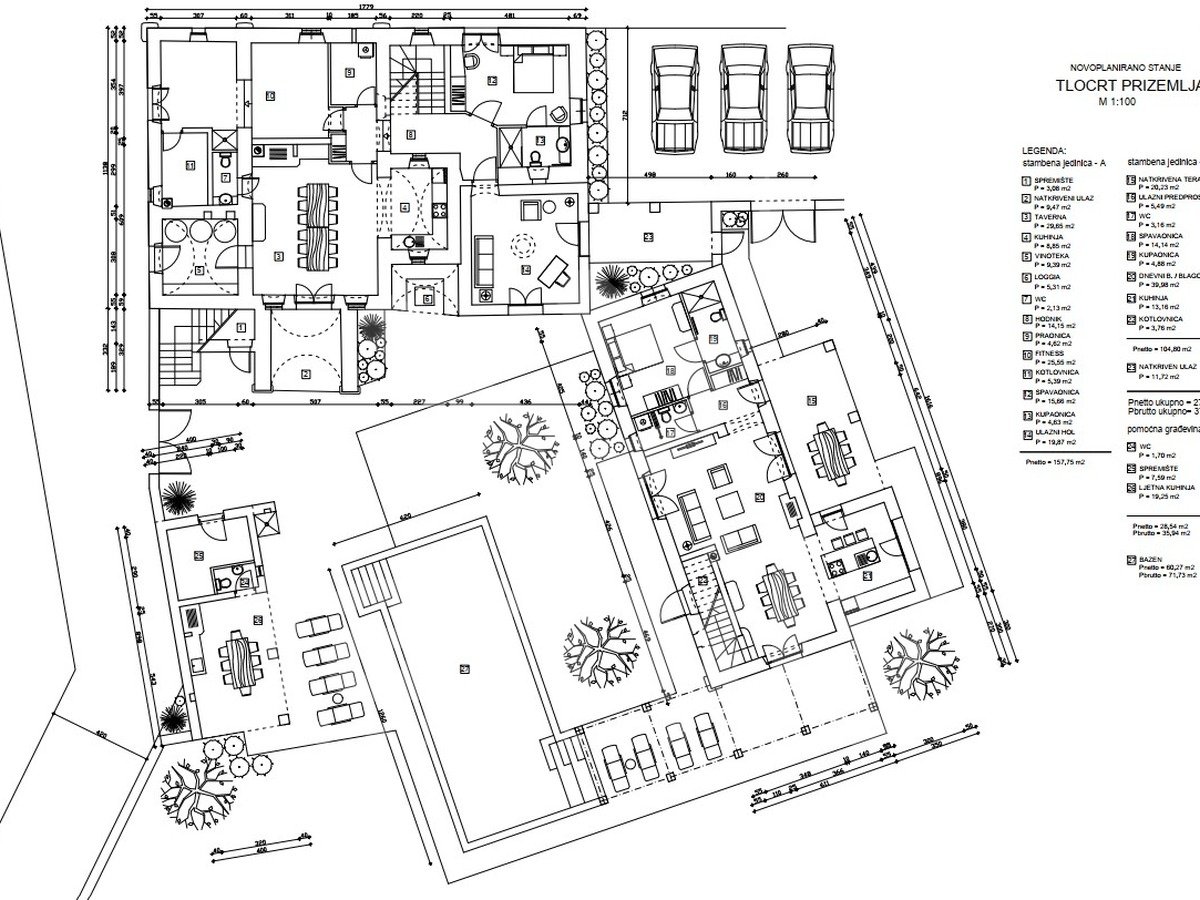
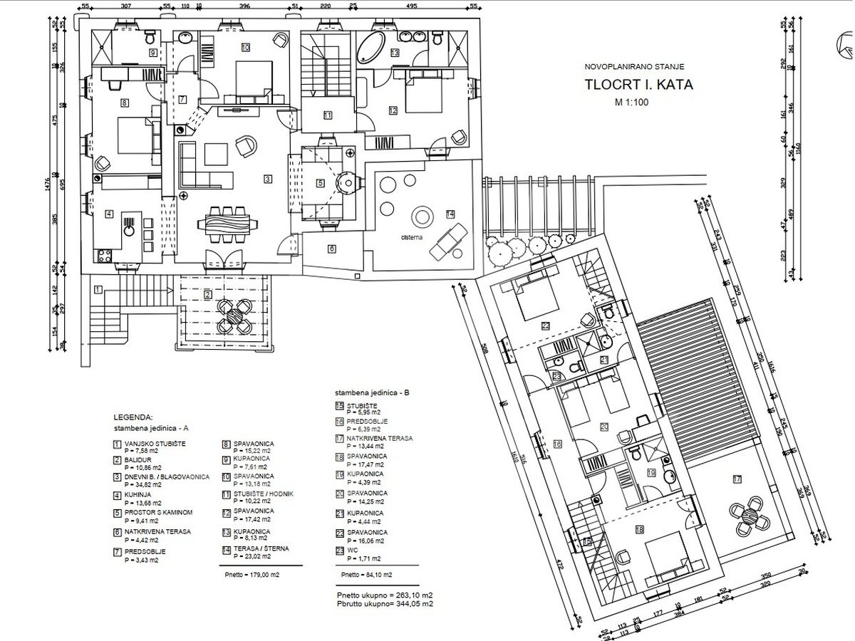
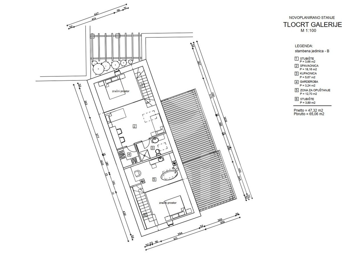
Das aktuelle Projekt umfasst: Das Erdgeschoss des Gebäudes, wo sich ein überdachter Eingang, zwei Küchen, eine Taverne, ein Lagerraum, ein Weinkeller, zwei Toiletten, zwei Badezimmer, eine Waschküche, ein Fitnessraum, ein Heizraum, ein Wohnzimmer mit Esszimmer, zwei Schlafzimmer mit einem Nebengebäude, das als Sommerküche mit Abstellraum und Toilette dienen würde. Die erste Etage würde aus einem Flur, einem Wohnzimmer mit Esszimmer, einer Küche, einem Raum mit Kamin, einer überdachten Terrasse, einer Terrasse mit Patio, sechs Schlafzimmern, einer Toilette und vier Badezimmern bestehen. Im Dachgeschoss der Immobilie würde es eine Galerie geben, die aus einer Treppe, einem Schlafzimmer, einem Badezimmer, einem Ankleidezimmer und einem Ruhebereich bestehen würde.
Das Anwesen verdient Aufmerksamkeit und ist angesichts seiner Gebäudefläche, seiner Bau- und Landwirtschaftsflächen, seiner ruhigen Lage und der Möglichkeit, verschiedene Aktivitäten in den Bereichen Tourismus, Gastgewerbe und Hotelbau mit allen dazugehörigen Inhalten auszuüben, sehr interessant , sowie die Möglichkeit eines Familienbauernhofs (OPG) etc.
FÜR ALLE WEITEREN INFORMATIONEN RUFEN SIE UNTER:
+385981748680
dean.zunic@family-nekretnine.hr
Dean Žunić
Lizenzierter Agent
Weitere Informationen
- Eigentum: Ordentlich
- Eigentumsnachweis: Ja
- Baugenehmigung: Ja
Standort


