Wohnung
GERÄUMIGE MODERNE WOHNUNG IN EINEM NEUBAU MIT GARTEN
Wohnung
80 m2
Premantura, Medulin
Etage Erdgeschoss
Schlafzimmer 2
Badezimmer 2
Parken 2
Merkmale
Beschreibung
Die Gemeinde Medulin liegt ganz im Süden der istrischen Halbinsel an der Küste. Medulin, einst ein Fischerdorf, ist heute ein modernes Touristenzentrum, das sich in den letzten zehn Jahren zu einem der begehrtesten Reiseziele Kroatiens entwickelt hat, wie die höchsten Übernachtungszahlen der letzten Jahre belegen.
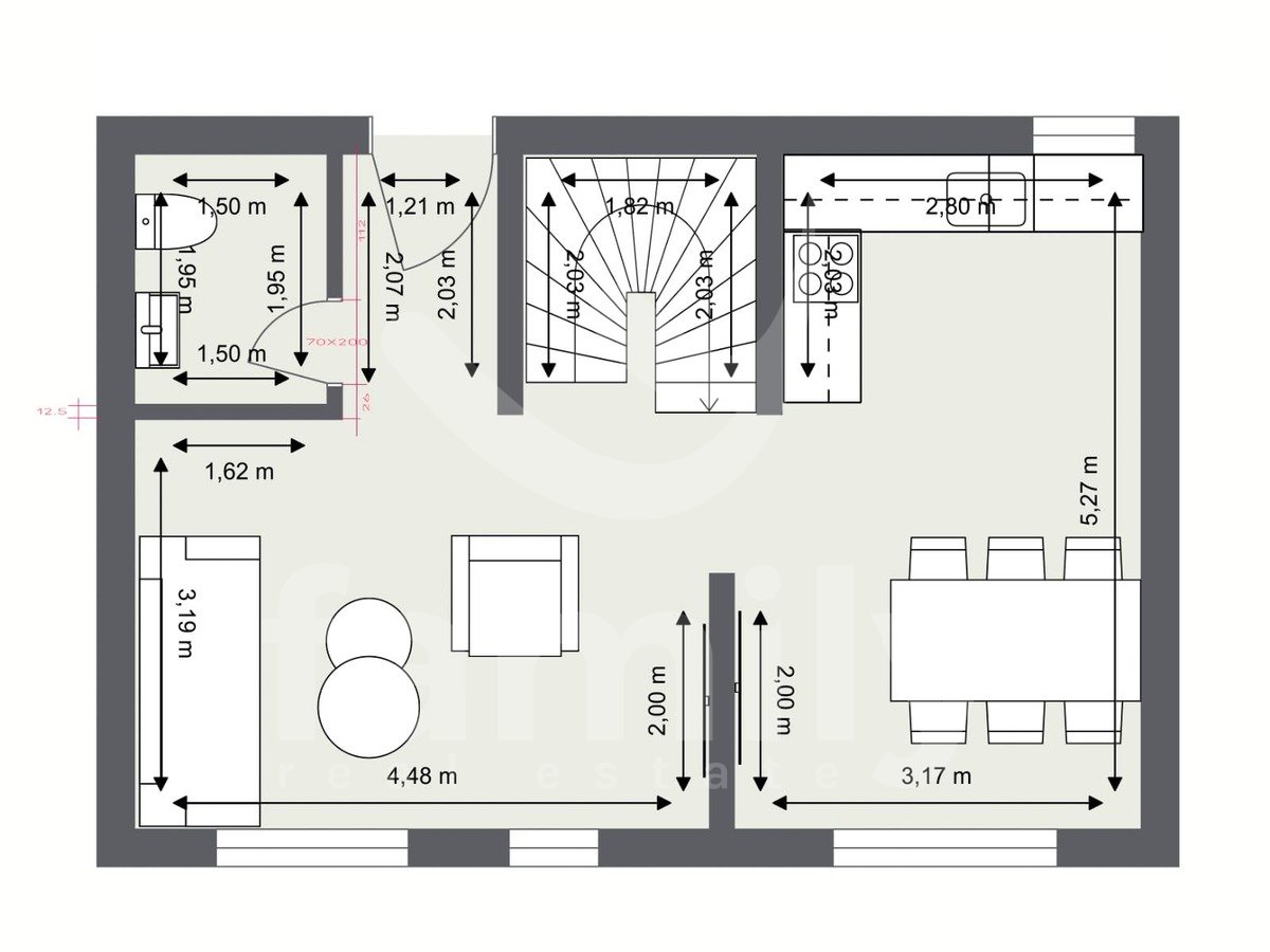
In der Gemeinde Medulin, genauer gesagt in Premantura, entsteht dieser hochmoderne und hochwertige Neubau eines erfahrenen Investors mit insgesamt sechs Wohneinheiten. Die Familienwohnung befindet sich im Erdgeschoss des Gebäudes mit einer Gesamtfläche von 80 m2 und erstreckt sich über zwei Etagen. Das Erdgeschoss der Immobilie besteht aus einem hellen Wohnzimmer mit Zugang zum Garten (geplant sind ca. 30 m2), einer hochwertigen Küche mit Essbereich, einem Gäste-WC sowie ein Abstellraum unter der Treppe. Über eine Innentreppe gelangt man in den zweiten Stock mit zwei komfortablen Schlafzimmern und zwei Badezimmern. Die Heizung und Kühlung erfolgt über drei Klimaanlagen, eine in jedem Schlafzimmer und eine im Wohnzimmer. Küche, Wohnzimmer und Bad sind mit einer elektrischen Fußbodenheizung ausgestattet. Die Wohnung verfügt über dreischichtige PVC-Fenster in Anthrazit, Hebe-Schiebetüren, elektrische Aluminium-Rollläden und Aluminium-Eingangstüren. Die Böden sind mit hochwertigem Parkett und Keramik ausgelegt, die Sie nach Ihren Wünschen gestalten können. Zur Wohnung gehören außerdem zwei Parkplätze.
Diese hochwertige Immobilie stellt aufgrund ihrer Bauqualität, der Wohnfläche und der Nähe zu allen Annehmlichkeiten eine sehr interessante Gelegenheit dar und bietet dem zukünftigen Eigentümer eine hervorragende Möglichkeit, sowohl für das Familienleben als auch für die touristische Vermietung, was die Kapitalrendite sicherlich beschleunigen würde.
FÜR WEITERE INFORMATIONEN RUFEN SIE AN:
+385 98 174 8680
dean.zunic@family-nekretnine.hr
Dean Zunic
Lizenzierter Makler
Weitere Informationen
- Heizung: Klimaanlage, Fußbodenheizung
- Tischlerei: Exzellent, PVC, Aluminium
- Parkett: Exzellent
- Deckenhöhe: 250 cm
- Eigentum: Ordentlich
- Eigentumsnachweis: Ja
Standort


